Projekt
Unter der Projekt- und Exkursionsleitung von Sarah Pallischeck und mit Begleitung von Werkstattleiter Martin Waleczek und dem wissenschaftlichen Mitarbeiter Horst Kuretitsch reisten 13 Bachelor-Studierende verschiedenen Semesters nach Omomas, in den Süden Namibias. Ziel der Exkursion war es, auf ein zuvor durchgeführtes Wahlfach aufbauend, institutsübergreifend in der Architekturfakultät einen gemeinschaftlich erarbeiteten Entwurf zu realisieren. Die Umsetzung eines Schattendaches über einer befestigten Spielfläche stand somit im Mittelpunkt der Reise. Der Bauauftrag der nördlich von unserem Entwurf entstand war dem Mangel geschuldet, dass die Lehrer keine eigene Unterkunft hatten, sowie die Toiletten in den Schlafräumen der Mädchen verortet waren. Dies hat sich, durch dem im Lageplan abzulesenden abschließenden Riegel im norden des Campus verbessert.
Project
Under the project and excursion management of Sarah Pallischeck and accompanied by workshop manager Martin Waleczek and the research assistant Horst Kuretitsch, 13 Bachelor students traveled to Omomas, in southern Namibia. The aim of the excursion was to build on a previously conducted elective subject, to realize a jointly developed design across the Institute in the Faculty of Architecture. The implementation of a shadow roof over a fortified playing area was thus at the center of the trip. The additional contract in the north of the shade roof was to build a dormitory for the teachers, as well as toilets for the girls outside their dormitory.
Innenansicht - Inside view
Ansicht und Schnitt - construction details
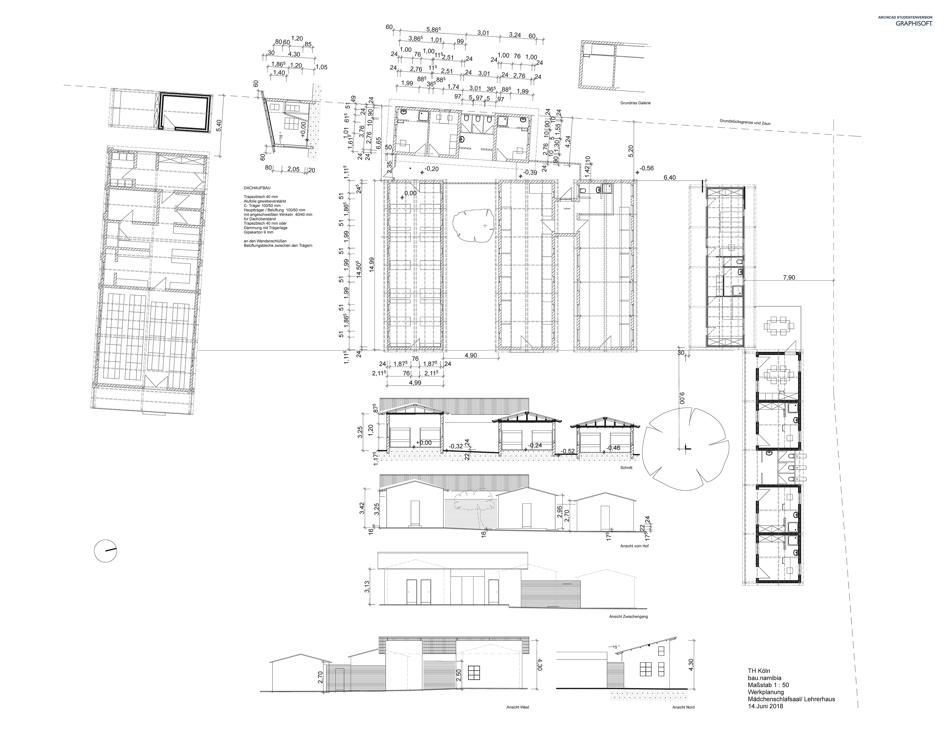
Ansicht Lehrerhaus und Lageplan - View Teachers-house and Flor Plan
Konstruktions Details - Construction Details
Eindrücke - Impressions
Die Exkursion nach Namibia fand statt vom 05.09. bis zum 21.09.2018.
The excursion to Namibia took place from 09/05-21/2018.
The excursion to Namibia took place from 09/05-21/2018.
Studierenden Team:
Simon Becker, Rafaela Becker, Jonathan Heitkämper, Antonia Jansen-Winkeln, Nina Juncker, Katharina Kassner, Martin Lülsdorf, Vera Noack, Nolwenn Pronost, Eva Thümeling, Juliane Wagner, Pia Schog
Simon Becker, Rafaela Becker, Jonathan Heitkämper, Antonia Jansen-Winkeln, Nina Juncker, Katharina Kassner, Martin Lülsdorf, Vera Noack, Nolwenn Pronost, Eva Thümeling, Juliane Wagner, Pia Schog
Bilder: Jonathan Heitkämper
BAU.NAMIBIA | Wahlmodul + Excursion mit Realisierung
BA 2 I Sommer Semester 2018
BA 2 I Sommer Semester 2018
Professoren
Prof. Dipl.-Ing. Peter Scheder
M.A. Sarah Pallischeck
Dipl.-Ing. (FH) Horst Kuretitsch
Prof. Dipl.-Ing. Peter Scheder
M.A. Sarah Pallischeck
Dipl.-Ing. (FH) Horst Kuretitsch